Kotłownia zewnętrzna kontenerowa KK 120 kW
Cena regularna:
towar niedostępny
dodaj do przechowalni
0
Opis
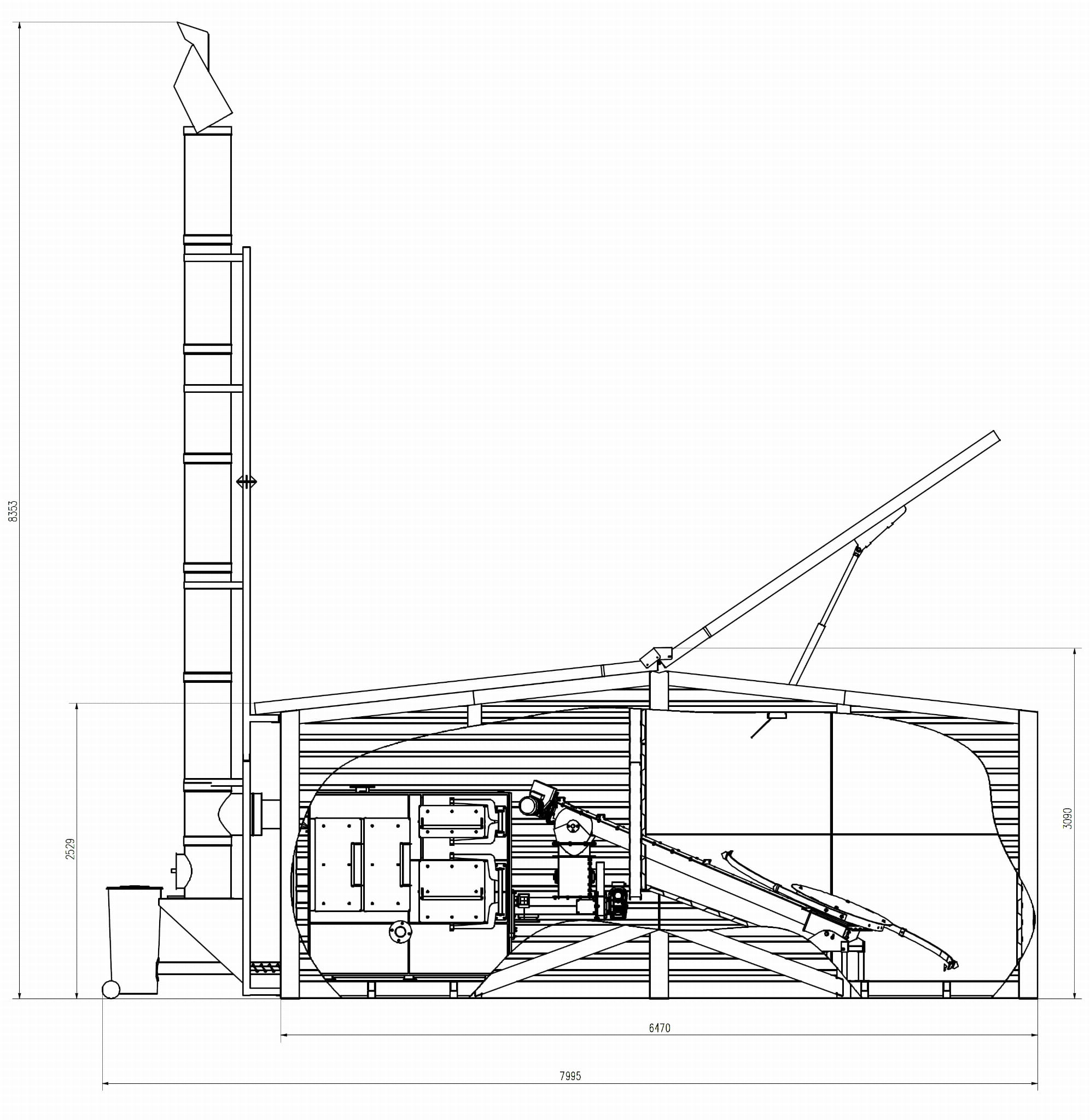
Kotłownia kontenerowa znajdzie zastosowanie do produkcji ciepła dla hoteli, ośrodków wczasowych, budynków mieszkalnych, hal i obiektów przemysłowych. Kotłownia spala paliwa stałe w postaci biomasy pochodzenia drzewnego. Produkt wykonywany jest na specjalne zamówienie klienta a następnie transportowany do niego.
Do poprawnego funkcjonowania w miejscu docelowym należy zapewnić prąd, wodę oraz podłączenie do sieci ciepłowniczej.
W skład kotłowni kontenerowej wchodzą:
- Automatyczny Zestaw do Spalania Biomasy z nagarniaczem sprężynowym,
- zbiornik paliwa z unoszonym przy pomocy siłowników hydraulicznych dachem,
- instalacja elektryczna na potrzeby pracy kotłowni oraz oświetlenie zewnętrzne i wewnątrz zbiornika.
Dodatkowo produkt można wyposażyć w:
- system zdalnego nadzoru i zarządzania,
- system załadunku zbiornika paliwa.

Wyświetlane są wszystkie opinie (pozytywne i negatywne). Nie weryfikujemy, czy pochodzą one od klientów, którzy kupili dany produkt.